Industrial boiler KP 200 kW with automatic fuel feed
Specifications
ADVANTAGES OF BOILERS WITH AUTOMATIC PELLET FEEDING WITH A TORCH-TYPE BURNER:
- Due to the low moisture content of pellets, pellet boilers are characterized by increased efficiency - up to 92%;
- The four-pass heat exchanger design, refractory brick lining of the furnace and excellent thermal insulation of the boiler are the key to efficiency. Thanks to this, the boiler consumes less fuel, which means lower operating costs;
- Fully automatic boiler operation;
- Automatic ignition and extinguishing of the burner;
- Simple operation;
- Possibility of modulation of burner power;
- Low electricity consumption;
| Parameters | Unit of measure | KP 200 KW |
| Nominal boiler power | kw | 200 |
| Approximate heating area | m2 | 2000 |
| Used fuel | Pellet, agropellet | |
| Coefficient of efficiency (nominal), not less | % | 86 |
| Heat exchange surface area | m2 | 19,2 |
| Hopper volume | m3 | 1 |
| FIREPLACE PARAMETERS | ||
| Depth | mm | 1000 |
| Width | mm | 850 |
| Volume | dm3 | 880 |
| Boiler water capacity | l | 526 |
| Boiler weight without water | Kg | 2338 |
| Required flue gas draft | Pа | 20÷40 |
| Flue gas temperature at the boiler outlet | °C | 100÷170 |
| Recommended minimum water temperature | °C | 57 |
| Maximum water temperature | °C | 90 |
| Nominal working water pressure | MPа | 0,2 |
| Maximum working water pressure, no more | MPа | 0,3 |
| Test water pressure, not less than | MPа | 0,4 |
| Electricity consumption, no more | W | 2х210 |
| FIREPLACE DOOR DIMENSIONS | ||
| Height | mm | 440 |
| Width | mm | 560 |
| Diameter of the direct and return network water pipes (DN) | mm | 80 |
| Diameter of the pipes under the safety valve (DN) | mm | 2x50 |
| Connecting outer diameter of the drill bit | mm | 348 |
| RECOMMENDED CHIMNEY PARAMETERS | ||
| Cross-sectional area | cm2 | 961 |
| Inner diameter | mm | 350 |
| Height (minimum permissible) | mm | 11÷12 |
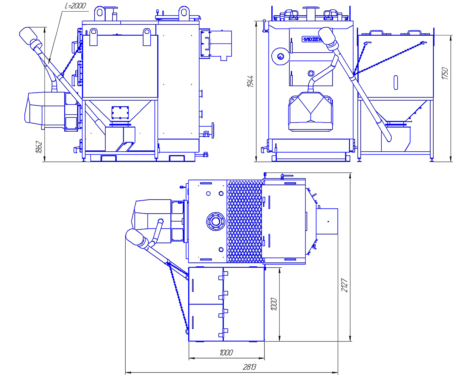
OVERALL DIMENSIONS OF THE KP 200 KW BOILER








